Jungstraße - Wohnungsumbau
Umnutzung und Umbau einer ehemaligen Gewerbeeinheit zu einer Wohnung für jugendliche, unbegleitete Geflüchtete
| Bauherr | lebensnah e.V. als sozialer Träger der Einrichtung |
| Maßname | Umbau, Anbau & Sanierung |
| Leistungsphasen | 3, 7, 8 |
| Ort | Friedrichshain, Berlin |
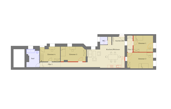
| Fläche | 127 qm Wohnfläche |
| Kosten | 20.000 € |
| Zeitraum | September 2016 bis Dezember 2016 |
Beschreibung
Durch den Umbau einer ehemaligen Gewerbeeinheit zu einer Wohnung wurde Platz für eine Wohngemeinschaft für jugendliche, unbegleitete Geflüchtete geschaffen. Durch geringe Eingriffe in die bauliche Substanz konnten vier geräumige Schlafzimmer und ein zentraler Aufenthaltsraum mit offener Küche als Mittelpunkt der Wohngemeinschaft geschaffen werden.
Unter Einbezug der Ideen und Wünsche der neuen Bewohner der WG und deren Mithilfe wurde die Maßnahme binnen zwei Monaten realisiert.
Bilder & Pläne

